











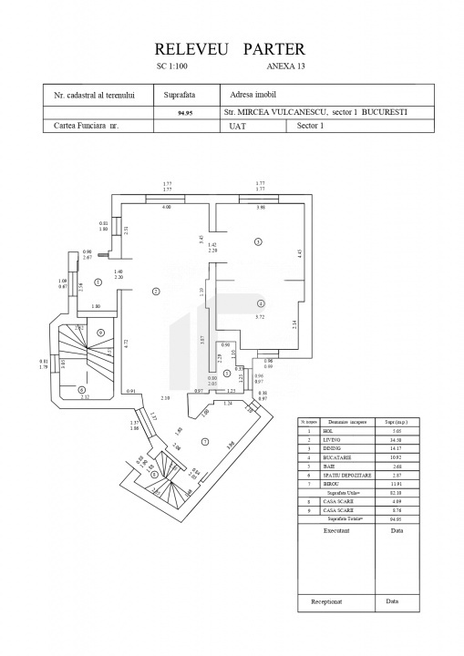
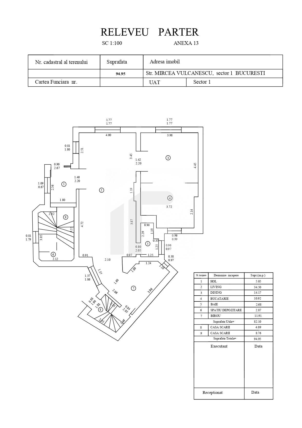
Vă prezentăm o oportunitate unică pentru companiile care apreciază calitatea și locația: un spațiu de birouri de 180 mp utili, amenajat într-o vilă individuală complet renovată în 2025, situată în prestigioasa zonă Știrbei Vodă.
Spații funcționale pentru businessul modern
Proprietatea oferă un mix perfect între spații open-space și birouri individuale, ideal pentru echipe de 15-25 persoane. Layout-ul versatil include:
6 birouri individuale/sale de meeting
Zone open-space cu design modern
Zonă lounge/relaxare cu șemineu decorativ - perfectă pentru brainstorming sau pauze
Bucătărie echipată pentru prepararea mesei/cafenea
2 băi complet dotate
Zonă primire/recepție
Design care inspiră productivitatea
Interiorul impresionează prin finisaje business-class: parchet masiv, iluminat modern cu pendule decorative, pereți în nuanțe sofisticate (roz pudrat, alb, accente de lemn) care creează o atmosferă profesionistă dar relaxantă. Spațiile luminoase cu ferestre generoase asigură lumină naturală excelentă - esențială pentru bunăstarea echipei.
Facilități și siguranță
✅ Renovare completă 2025 - totul nou, totul funcțional✅ Interfon video și acces securizat✅ Uși blindate✅ Internet de mare viteza (fibră disponibilă)✅ Contoare individuale (transparență costuri)✅ Curte privată 250mp - pentru evenimente sau relaxare✅ Climatizare
Locație de business - Știrbei Vodă Premium
Zona Știrbei Vodă este una dintre cele mai prestigioase adrese din București pentru birouri boutique. Avantaje locație:
📍 La 3 minute de Parcul Cișmigiu🚇 Metrou Universitate/Izvor - acces rapid pentru angajați🅿️ Parcare stradală☕ Restaurant, cafenele, bănci în proximitate🚌 Transport public excelent🏛️ Centrul istoric și zona de business Calea Victoriei la 5-10 minute
Ideal pentru:
Consultanță (legal, financiar, IT, HR)
Agenții creative/marketing
Birouri reprezentanță companii internaționale
Cabinete medicale private
Sedii startup-uri/scale-up-uri
Firme de arhitectură/design
Condiții închiriere:
Chirie: 2.600 EUR/lună (14,4 EUR/mp)
Garanție: 2 luni (5.200 EUR)
Contract: minim 12 luni, negociabil pe termen lung
Disponibilitate: imediată
Utilități: separat (contoare individuale)
Programați o vizionare și descoperiți spațiul ideal pentru businessul dumneavoastră!