Renet utilizează fişiere de tip cookie pentru a personaliza și îmbunătăți experiența ta pe Website-ul nostru. Înainte de a continua navigarea pe Website-ul nostru te rugăm să aloci timpul necesar pentru a citi și înțelege conținutul Politicii de Cookie. Prin continuarea navigării pe Website-ul nostru confirmi acceptarea utilizării fişierelor de tip cookie conform Politicii de Cookie.

CORNETU CASA P+E+Pod 222 MP, LOT 549MP

Cornetu

142.000€
ID: VP18605 2
Reprezentare exclusiva de vanzare
  • ID:VP18605
  • Nr. camere:5
  • Nr. dormitoare:3
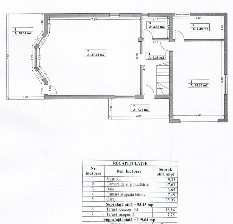
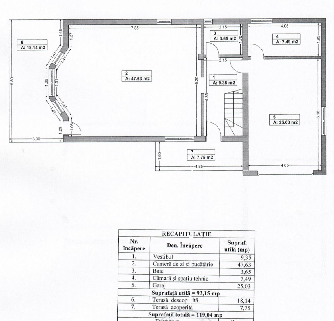
  • S. utila:153.00 mp
  • S. utila totala:213.00 mp
  • S. construita:222.00 mp
  • S. teren:549.00 mp
  • Nr. bucatarii:1
  • Nr. bai:2
  • Nr. balcoane:2
  • Nr. parcari:2
  • Nr. garaje:1
  • Front stradal:16.47 m
  • Nr. fronturi:1
  • An constructie:2020
  • Structura rezistenta:Beton
  • Regim inaltime:P+1
  • Clasa energetica:A
Utilitati
  • Utilitati generale: Curent, Apa, Canalizare, Gaz, Put, Fosa septica, Curent trifazic, CATV, Telefon, Acces internet, Fibra optica, Utilitati in zona
Finisaje
  • Izolatii exterior: Exterior, Interior
  • Ferestre: PVC
  • Usa intrare: Metal
Dotari
  • Contorizare: Apometre, Contor caldura, Contor gaz
  • Imobil: Curte, Gradina

Casa P+E+Pod construita in anul 2020 cu Suprafata 220 mp, cu amprenta 137 mp, bransata la toate utilitatile; canalizare, apa de la retea, gaze si lumina deja functionale, este finisata la exterior și interior, este din caramida de 30 cm la exterior și 15 cm peretii din interior, accesul în cele doua poduri se face din camera situta deasupra garajului, drumul de acces este privat.



Suprafata terenului este de 549 mp, imprejmuit cu gard, intr-un cartier linistit, doar cu constructii noi, str.Rasaritului nr.25A. 
Compartimentare parter: vestibul, living cu iesirea la terasa, bucatarie, baie cu fereastra, acces in garaj si camera tehnica.
La Etaj:3 dormitoare, spatii pentru dressinguri, balcon, terasa din spatele casei este transformata intr-o camera mare, baie cu fereastra.

Acordam suport pentru finantare.
Vă invit să ne contactați pentru mai multe informații și pentru a programa o vizionare a proprietății.

Oferta importata de la agentie colaboratoare

Sorin Stoinea

Agent Imobiliar REALTOR®
Printeaza